Ska?rmavbild 2025-12-03 kl. 13.12.50

Kontor

Vasastan

Bruksarea
175 kvm
Hyra
84 921 kr/mån
Adress
Tegnergatan 37

Kontor

Vasastan

Bruksarea
175 kvm
Hyra
84 921 kr/mån
Adress
Tegnergatan 37

Kontorslokal på Tegnérgatan 37 – ett förstklassigt läge i Vasastan

Välkommen till en kontorsadress som förenar citypuls med trivsam kvarterskänsla. Tegnérgatan 37 ligger i ett av Vasastans mest uppskattade områden, omgivet av restauranger, caféer och service av hög kvalitet. Här råder ett levande gatuliv och kommunikationerna är utmärkta med både tunnelbana och buss på bekvämt avstånd, vilket ger god tillgänglighet för både medarbetare och besökare.

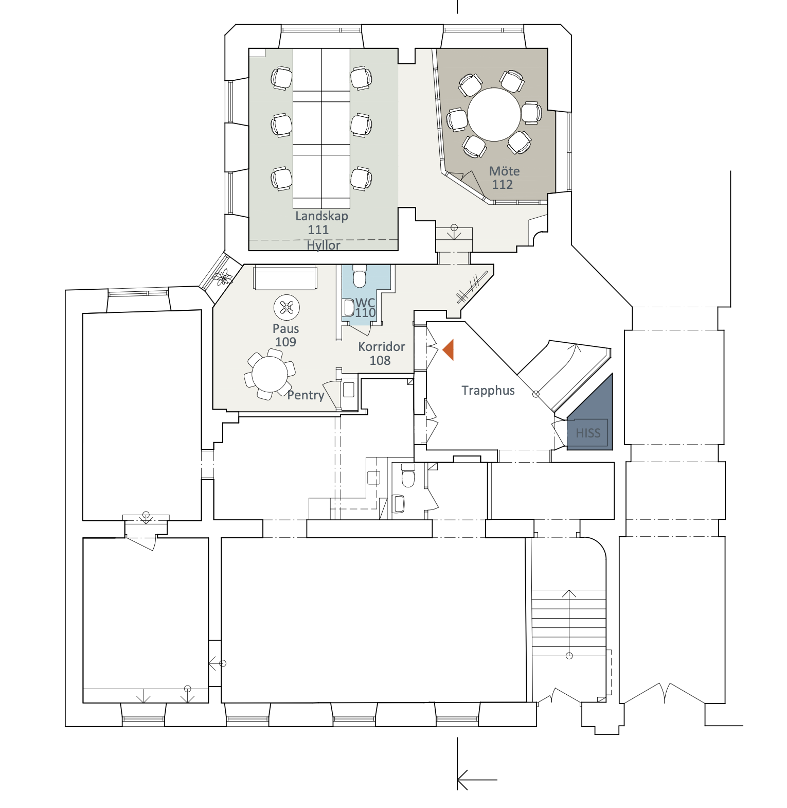
Lokalen har en rustik och karaktärsfull atmosfär med frilagda tegelväggar, trägolv med fin patina och en imponerande takhöjd som skapar rymd. Ytan är uppdelad i två delar, där den ena vetter mot en lugn innergård och den andra mot Tegnérgatans livfulla gatumiljö. Generöst ljusinsläpp från flera väderstreck bidrar till en behaglig arbetsmiljö.

Kontoret rymmer flera separata rum som lämpar sig väl för både fokuserat arbete och möten, och kompletteras av ett modernt pentry som fungerar som en naturlig samlingspunkt. Lokalen är utrustad med två wc, mekanisk ventilation och fiber, vilket tillsammans skapar en funktionell och trivsam arbetsplats.

Hyresvärd: Fastighetsbolag
Hyra: 84 921 kr / månad exkl. moms
Fastighetsskatt: 5 603 kr / månad exkl. moms
Hyresgaranti: Deposition
Yta: 175 kvm

Nextor Group
Anders Ölve
Mail: olve@nextor.se
Telefon: 076 340 11 11

Behöver du hjälp med uthyrning eller överlåtelse? Kontakta mig gärna för en kostnadsfri värdering.

Yta
175 kvm
Hyra
84 921 kr/mån
Karta
Mäklare
Anders Ölve
Ansvarig Mäklare
Intresseanmälan
Du har nu denna länk i ditt urklipp!